1. 서 론
2. 비개착공법 적용시 유한요소 해석과 관리기준
2.1 기존정거장 기초 현황분석
2.2 기존시설물 안정관리기준
2.3 비개착공법
2.4 지하철 정거장 하부 통과공법 적용에 따른 안정성 영향 분석
2.5 적용이론 및 해석 기법
2.6 비개착공법 유한요소 해석 결과
2.7 유한요소 해석 결과
2.8 2D와 3D 해석의 변위 비교
3. 결 론
1. 서 론
새로이 건설되는 노선의 정거장은 기존 지하철 정거장과의 환승을 위하여 이동 동선을 최소화 하고 시민의 안전을 확보하는 것을 원칙으로 하여 기존 지하철 정거장 하단부에 계획하고 건설하고 있다.
지하로 내려간 대심도 정거장은 공사 중에 더욱더 많은 위험에 노출되고 있다. 즉 기존 지하정거장이 건설된 지 20~30년 이상 되어 기존 지반이 안정화 된 상태에서 새로이 기존정거장 하부를 굴착하여 통과 할 수밖에 없어 부득이 특수한 공법을 적용하여 건설된다 하여도 기존 지반의 변위는 수반될 수밖에 없는 실정이다(Jang et al., 2016).
이로 인한 기존 정거장의 안전성을 담보 할 수가 없는 실정이므로 해당지역 지반의 물리적 특성을 탄성 및 탄소성 이론을 도입하여 구조적으로 적당한 미소 요소로 분할해서 각 요소가 유한개의 점으로 연결되는 요소로 가정한 모델로 고려하여 수치적 해석을 수행하여 온 바 있다(Bong et al., 2014).
지반에 대한 거동 및 응력 분석은 2차원 평면 변형 요소를 사용하면서 탄소성 이론을 도입하여 연속체로 해석하고, 지반 재료의 거동은 Mohr-Coulomb 파괴 기준(Zhang et al., 2018)을 모델화하여 본 논문에서는 분석하고자 한다.
이 연구에서는 서울특별시 지하철 ○호선의 ○○역 하부통과에 따른 비개착공법(UPRS: Upgraded Pipe Roof Structure)의 적정성 해석을 구조물 강관 추진시와 내부굴착시 침하량 및 강관 및 콘크리트의 안정성을 확인한 후 구조물 변위에 대한 지하철 ○호선 관리기준과 비교 검토하여 공법의 안정성을 검증 하고자 한다.
2. 비개착공법 적용시 유한요소 해석과 관리기준
2.1 기존정거장 기초 현황분석
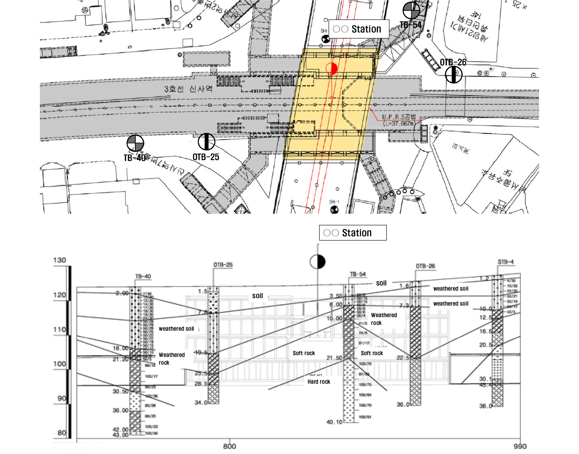
연구대상으로 선정한 ○○역 하부 통과구간의 지반은 ○호선 준공도를 확인 결과 풍화암 지반위에 바닥두께 1,100 mm의 매트 기초로 형성되어 있으며 금번 해당지역의 토질조사를 시행하고 검토한 결과 준공된 도면의 지질상태와 일치함이 확인되어 본 토질조사에서 구득한 토질정수를 이용하여 해석함에 있어서 신뢰성을 확보할 수 있음이 검증되었다.
○○역의 지반요소를 확인하기 위하여, 본 논문에서는 Fig. 1의 토질조사 항목은 시추조사 62개소, 투수시험 17회, 수압시험 42회, 공내재하시험 27회, 전기비저항탐사 4.5 km, 굴절법탄성파검사 0.96 km, 지하수유향유속 2회, 실내토질시험 1회, 실내암석시험 1회를 실시하였고, 그 결과 해당 구간별 지반 내 토질을 분석하여 구간별 불연속면의 특성 분석을 할 수 있었다.
해당구간의 지반조사 결과를 토대로 하여 불연속면의 특성을 분석한 결과, Table 1의 상부 매립층은 실토질 모래로 구성되며 1.2~1.8 m 두께로 비교적 균등한 지층 상태로 보이고, 퇴적층은 모래섞은 자갈로 6.3 m 두께의 분포를 확인, 풍화토는 실토질 모래로 구성되어 5.7~16.2 m이고, 풍화암은 3.2~15.2 m 두께로 분포 지하수위(GL)는 9.2~11.2 m 풍화대 구간에 위치하고 있었으며, 부분적으로 파쇄대가 분포하며, 절리면은 대체로 평면형의 거칠음 상태가 우세하게 나타내고 있고, 연암은 RQD가 0~35%, 경암은 RQD 43~91%로 비교적 양호한 상태를 보이고 있다.
Table 1. Distribution Characteristics by Strata
본 구간의 지하 하부 통과 비개착(UPRS: Upgraded Pipe Roof Structure)공법 추진으로 인한 기존 지하철 구조물의 변위량과 응력의 변화량 해석을 위해 적용하는 설계지반정수는 지반조사와 토질조사 시험. 실내시험을 통하여 구득한 정수를 적용하여 안정성을 검토 반영하였다. 본 검토구간은 매립층과 풍화토, 풍화암, 연암, 경암층으로 구성되어 있으며, 심도 약 20 m 내외(지표면고 기준)에서 연암층이 발견되었음을 중시하여 Table 2에 제시한 바와 같이 설계지반정수는 지반조사와 실내시험에서 산출된 값을 적용하여 안정성 검토를 수행하였다.
Table 2. Design Ground Constant
2.2 기존시설물 안정관리기준
기초지반의 침하는 균등침하(Uniform Settlement), 전도(Tilting) 및 부등침하(Non-uniform Settlement)로 대별되는데 기초의 침하는 구조물이 파괴되지 않더라도 구조물의 기능장애 또는 외관상의 손상 등을 유발하므로 피해정도를 판단할 수 있는 기준의 선정 및 적용이 중요하다. 독립기초 및 확대기초의 손상한계와 허용 연직변위량은 국도건설공사 설계실무요령(Ministry of Land, Infrastructure and Transport, 2013)을 근간으로 하였고, 구조물 허용각 변위한계값은 캐나다 지반공학회 매뉴얼4(CGS1978-Polshin, Tokar, 1957)에서 부등침하 발생에 변형이 일어나지 않는 구조물의 허용 각변위값 1/200과, 강구조, 철근콘크리트 구조물 1/500을 한계치로 하여 유한요소 해석 결과 값이 본 기준 한계 이내이여야 안정하다고 판단할 수 있다. 이러한 선행 연구된 자료들을 안정관리기준으로 하였으며 Table 3과 Table 4에 제시하였다.
Table 3. Structural Damage Limits*
**: Values in () are recommended maximum values
Table 4. Allowable Vertical displacement of Indeterminate Structures *
| Division | Bearing Layer | Max. displacement | Unequal displacement |
| Indeterminate Structures | Sand ground | 25 mm | 20 mm |
| Clay ground | 50 mm | 20 mm | |
| Composite ground | 30 mm | 20 mm |
2.3 비개착공법
비개착공법은 강관을 중첩되게 묶음 또는 강관과 강관 사이를 곡선인 철판 부재로 연결한 강관다발구조체를 제작하며, 강관다발구조체의 내부에는 좌·우 통행이 가능한 연통홈과 그라우팅(Grouting) 니플을 부착하고 강관다발구조체의 외부에는 압입시 맞물리게 추진될 수 있도록 연결고리를 부착한다.
압입추진은 선 압입된 강관다발구조체의 측면을 내부에서 지지봉으로 보강하고 순차적으로 절개하며, 그 절개면에 압입될 강관다발구조체의 외부에 있는 연결고리가 맞물리게 구속되어 압입 추진되므로 이탈이 방지되어 오차 없이 정밀 시공된다. 압입 완료 후 맞물린 연결 부위는 강관다발구조체의 내부에서 용접으로 접합하고 연통공에는 철근다발을 설치하여 콘크리트를 타설하는 횡방향 강성을 확보한 강관루프 구조체공법(Fig. 2 참조)이다(Jang et al., 2016).
2.4 지하철 정거장 하부 통과공법 적용에 따른 안정성 영향 분석
해석범위는 ○○역 정거장 하부 통과에 따른 주요 현황을 시공단계별로 고려하여 범용 프로그램인 MIDAS GTS NX를 사용하여 유한요소 해석을 수행하고, 이에 따른 지반 안정성을 검토하였고, 비개착공법 적용구간에서 신사정거장 기초 하부까지의 거리는 약 2.73 m로 비교적 저토피 구간인 상황을 해석에 반영하여 주요구간에 대한 시공단계를 고려한 2차원 유한요소 해석을 수행하여 안정성을 검증하였다.
지반조건은 많은 불확실성을 내포하고 있기 때문에 역학적 거동이 복잡하여, 다중강관추진공법의 시공 중에 예상치 못한 상황을 접하게 되는 경우가 빈번하므로 합리적인 다중강관추진공법의 설계와 시공을 위한 해석에 앞서서 확실한 지반 조사를 선행 하였으며, 근래 수치해석 기법은 연속체 모델과 불연속체 모델로 구분하나 보편적으로 연속체역학 개념의 유한요소해법을 적용하였고, 다양한 굴착단계, 단면 크기에 따라서는 보다 세부적이고 많은 분할 요소가 요구 되므로 이러한 문제점을 극복하기 위해서 토사등. 비선형 재료에 대한 구성방정식으로 모델의 파괴 거동을 쉽게 파악할 수 있는 해석기법을 적용하였다.
2.5 적용이론 및 해석 기법
소성상태의 증분변형도와 증분응력의 관계식을 설정하고 소성상태의 증분변형도와 증분응력의 관계는 Plastic Flow Rule에 따라 유도된 탄소성 응력 변형도 관계 매트릭스를 사용하여 식 (1)로 구하였고.
여기서, : 증분 변형도벡터, : 소성상태의 증분응력벡터, : 탄성응력-변형도관계매트릭스, : 항복함수, Dep : 증분변형도와 증분응력관계 매트릭스
따라서 항복 함수의 편미분을 구하면 탄소성 응력 변형도 관계 매트릭스 식으로부터 구할 수 있으며, 이로부터 증분변형도 벡터가 주어지면 소성 상대의 증분 응력 벡터를 구할 수 있다.
항복 함수의 편미분을 통하여, 항복함수()는 파괴 기준에 따라 달라지며, 따라서 항복함수의 편미분도 이와 같다. Program에서는 파괴 기준으로 Mohr-Coulomb, Draker-Prager 및 Hook-Borwn 파괴 기준을 사용하였다.
| $$R_0=\frac{c\bullet cos\;\varnothing-(\sigma_x+\sigma_y)sin\;\Phi}2$$ | (2) |
여기서 : 점착력 : 내부 마찰각, sigma x : x축 값, sigma y : y축 값, sin pai : 위상각
초기 응력 상태를 구하는 것은 오른쪽 Flow Chart와 같은 방법으로 산출하였다.
알고리즘은 다섯 단계로 이루어져 있으며, Fig. 3의 각 단계를 거치면서, 안정화를 위한 평형상태를 확인하게 된다.
① STEP 1 : 단성 해석 실시
② STEP 2 :
③ STEP 3 : 재료 특성이 탄성일 경우에는 STEP 2에서 초기 응력 해석이 끝나며, 재료특성이 소성일 경우에는 다음의 과정이 추가된다.
④ STEP 4 : 모든 변위를 제로(0)로 Clear시킨다.
⑤ STEP 5 : 이전의 외력은 제로(0)로 Clear시키고, 현재의 응력 상태와 등가의 절점하중(Equivalent Nodal Force)을 구하여, 이것을 가해진 외력 향으로 취한다. 이렇게 함으로써 응력과 외력이 평형 상태를 이루게 하여 산출하였다.
지반의 물리적 특성을 탄성 및 탄소성 이론을 도입하여 구조적으로 적당한 미소 요소로 분할해서 각 요소가 유한개의 점으로 연결되는 요소로 가정한 모델로 고려하여 수치적 해석을 수행하였으며, 지반에 대한 거동 및 응력 분석은 2차원 평면 변형 요소를 사용하고 탄소성 이론을 도입하여 연속체로 해석하였으며, 지반 재료의 거동은 Mohr-Coulomb 파괴 기준을 모듈화하여 분석하였다.
초기 응력인 굴착 작업 전의 응력 상태는 전 요소의 절점 변위를 0으로 하고 절점 응력은 식 (3)으로 표현하여 산출하였고, Fig. 4에 나타내었다.
| $$\sigma_y=\gamma\bullet h,\;\sigma_x=k_o\bullet\sigma_y$$ | (3) |
여기서 sigma x : 절점응력 x축 값, sigma y : 절점응력 y축 값, gamma : 응력상태, h : 요소 값, k0: 상수 값
지반굴착을 실시할 때 초기응력을 받고 있는 지반이 굴착부분에서 응력의 해방을 받게 되므로. 이때 이 자유면이 받는 하중은 초기 응력으로부터 계산되므로 이 하중을 해방력으로 해석을 하였다.
지반공학에 가장 넓게 사용되는 파괴기준은 Mohr-Coulomb의 모델이므로, 해석프로그램에서는 항복면의 내측에서는 탄성적 거동을, 외측에서는 소성적 거동을 나타내어 Mohr-Coulomb의 기준을 근거로 완전 탄성체를 채택하여 해석하였다.
2.6 비개착공법 유한요소 해석 결과
수치해석시 적용한 시공단계는 설계시공단계와 동일하게 Fig. 5와 같이 묘사하여 굴착 단계별 해석순서를 정하였다.
2.7 유한요소 해석 결과
○○역에서의 종축 변위를 살펴보면, Fig. 6과 같이 되며, 종방향 굴착시 변위도는 Fig. 7과 같이 나오고, 부등침하는 Fig. 7과 같이 묘사된다.
본 연구에서는 분석결과로 ○○정거장 종방향 굴착변위는 최대 5.27 mm가 발생되어 허용변위기준 25.00 mm 이내로 안정성을 충족하였고, 신사정거장 허용각 변위는 1/4,500으로 허용 각 변위 기준 1/500 이내이므로 안정성을 확보되었다.
Fig. 8은 비개착공법 적용에 따른 E 지점 강관의 연직변위도와 응력을 나타내었다.
비개착공법 강관다발 구조체의 연직변위는 최대 8.31 mm 발생하여 허용(25.00 mm) 기준 이내로 검토되었으며, 강관다발 구조체의 최대 휨압축응력량은 70.29 MPa로 허용기준(210.00 MPa) 이내, 강관다발 구조체의 최대 전단응력량은 47.38 MPa로 허용기준(120.00 MPa) 이내로 분석되어 안정성이 확보되었다.
2.8 2D와 3D 해석의 변위 비교
Fig. 9에서와 같이 3D 해석 결과를 참조하여 최대변위 발생구간을 2D 단면으로 변위발생을 비교 검토하였다.
검토결과 3D 해석시 최대변위 5.27 mm가 발생하였으며 2D 검증결과 7.21 mm가 발생하는 것으로 검토되어, 허용변위량 25.00 mm 이내 이므로 안정성은 확보되었다.
3. 결 론
본 연구에서는 ‘지하철 ○○역 정거장’을 대상으로 비개착공법을 적용하였을 경우, 안정성을 확보하기 위하여 유한요소 해석을 수행하고, 관리기준과, 안정범위를 분석하여, 안정성 확보 기준을 제시하였다.
‘지하철 ○○정거장 하부를 비개착 공법으로 공사 시행을 위하여 정거장 구조물의 안정성 검토를 연구한 결과 비개착공법 강관다발 구조체의 연직변위의 허용기준은 25.00 mm이지만, 최대 8.31 mm 발생하였으므로, 이는 기준 이내로 안정성을 확보하는 것으로 분석 되었고, 비개착공법 강관다발 구조체의 최대 휨압축응력량도 70.29 MPa로 허용기준(210.00 MPa) 이내에서 안정성을 보였고, 비개착공법 강관다발 구조체의 최대 전단응력량은 47.38 MPa로 허용기준(120.00 MPa) 이내로 확인되어, 제시된 방법의 안정성을 검증하였다.
첫째로, ○○역 하부통과에 따른 비개착공법의 적정성 해석은 구조물 강관추진시와 내부굴착시 침하량 및 강관 및 콘크리트의 안정성을 확인하는 것이 가장 중요하며, 비개착공법의 강관추진시 굴착시에 무지보 & 지보상태의 ○○역 기존정거장의 구조물 변위를 검토하여 안정성을 확인하였다.
둘째로, 강관추진 완료 후 내부 굴착시 중간 지보재를 설치하지 않았을 경우에 대한 비개착의 강관 및 콘크리트 응력을 검토하고 허용응력과 비교 검토하여 안정성을 확인하였다.
셋째로, ○○역 기존 정거장의 안정성 검토는, 비개착공법의 하부통과 시공시 굴착으로 인하여 기존정거장에서 시공변위가 발생되며, 이 시공변위를 모멘트 등으로 환산하여 기존단면의 결과값에 하중계수를 곱한 모멘트값을 기존구조계산서에 추가로 도입하여 단면검토를 시행한 결과를 기반으로, ○○역 기존정거장의 안정성을 확인하였다.











